RENTAL PROPERTY

Front of Property

This is the front of the House including 2 x Covered Parking Bays

Front of House from Dead End Street Front of House with Double Garage and Double Car Port

Main Bedroom

The Main Bedroom has 2 En Suite (His / Hers) Bathrooms and build in cupbourds

Main Bedroom view from Door Main Bedroom view from Large Window

Main Bedroom Dual Bathroom

His and Hers en suite Main Bedroom Bathroom

Hers en suite Main Bathroom His en suite Main Bathroom

Second Bedroom

Spacious Second Bedroom with Build In Cupbourds

Second Bedroom from Door Second Bedroom from Window

Third Bedroom or Study

Third Bedroom or Large Study

Large Study or Third Bedroom

Full Bathroom

Full Bathroom (Shower, Bath, Toilet and Baisen)

Full Bathroom

Lounge

Lounge with Large Windows

Lounge view to Dining Room Lounge view to Windows

Dining Room

Dining Room with large window to back garden

Dining Room view to Front Door and Lounge Dining Room view to Lounge Dining Room with Serving Window to Kithcen

Braai Room

Braai Room with sliding dors to Back Garden and Front Patio and views of Sea and Communial Garden

Braai Room with Sea Views and Views to Communal Garden Braai Room towards Lounge Braai Room towards Braai

Kitchen

Kitchen with lots of Cupbourds and Scullery

View to kitchen from Hallway Kitchen from Scullery Kitchen view to Scullery Kitchen Scullery

Double Garage

Direct Access Double Remote Controlled Garage with Double Under Cover Car Port

Garage Doors and Car Port Garage inside view to doors View through Garage to Door leading to Front Patio

Front Patio

The Front Patio with views to Communal Garden and Sea View

Front Patio with view to Communal Garden Patio View from the Braai Room View of Communal Garden from Patio

Private Back Garden

Private Back Garden leading to Communal Garden

Back Garden from Scullery to Garden Shed and Communal Garden Gate Back Garden to Garden to Shed on right and Kitchen in Front Back Alley from Scullery to Front Gate

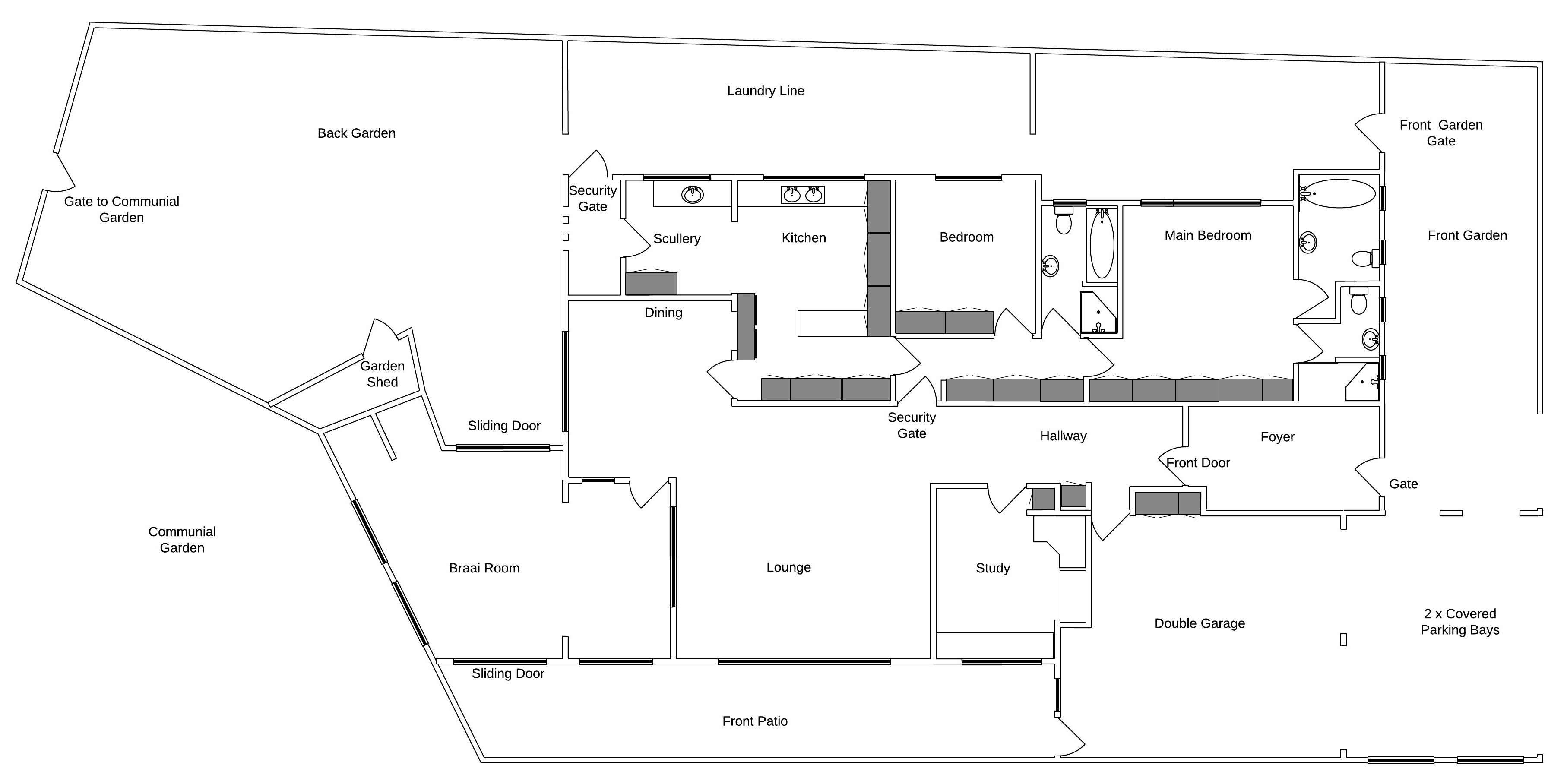
Property Floorplan

The basic layout of the property

Floorplan of Property

De Novo - Secure Gated Complex

Gated Complex with Electrical Fence near Shops and Schools

De Novo Complex
×

Contact

9 Lindie Street, De Novo, Somerset West

The property is in a secure complex with electrical fence and two motorised access gates. This is the largest 3 Bedroom property in the complex located in the quite Cul De Sac. It has sea views overlooking the the Central Communal Garden to which it has direct access from the back garden.

Please contact Soné for further information

sone.meij@gmail.com.
Powered by w3.css